MAÎTRISE D’OUVRAGE
EURL 20-22 RUE LE PELETIER
MAÎTRISE D’OUVRAGE DÉLÉGUÉE
DELPHA CONSEIL
AMO HQE
N’CO
ARCHITECTE
DTACC
ARCHITECTE D’INTÉRIEUR
DTACC
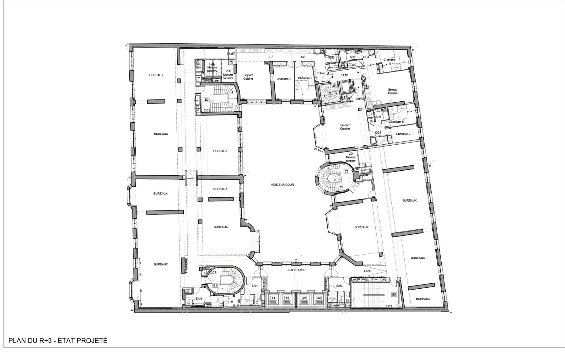
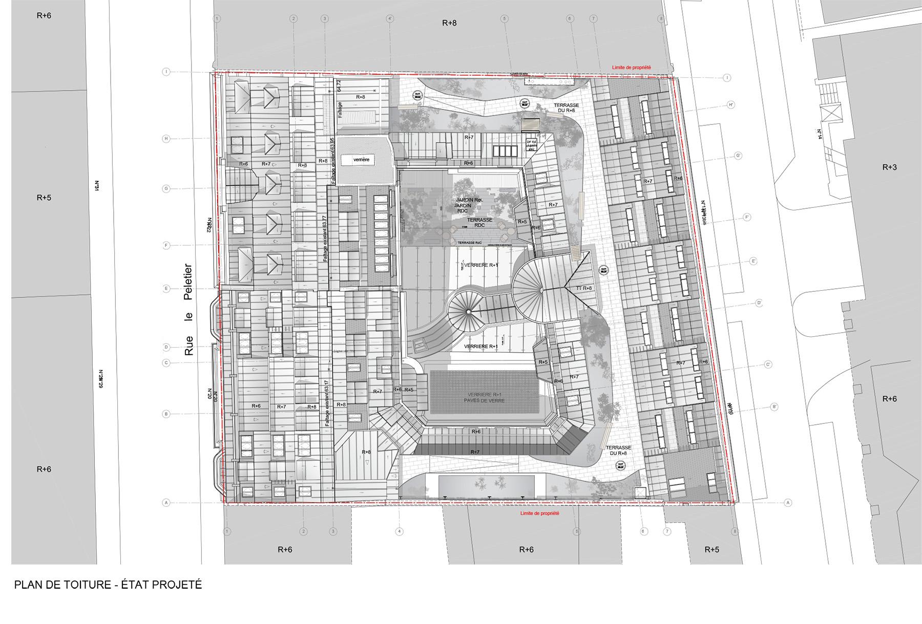
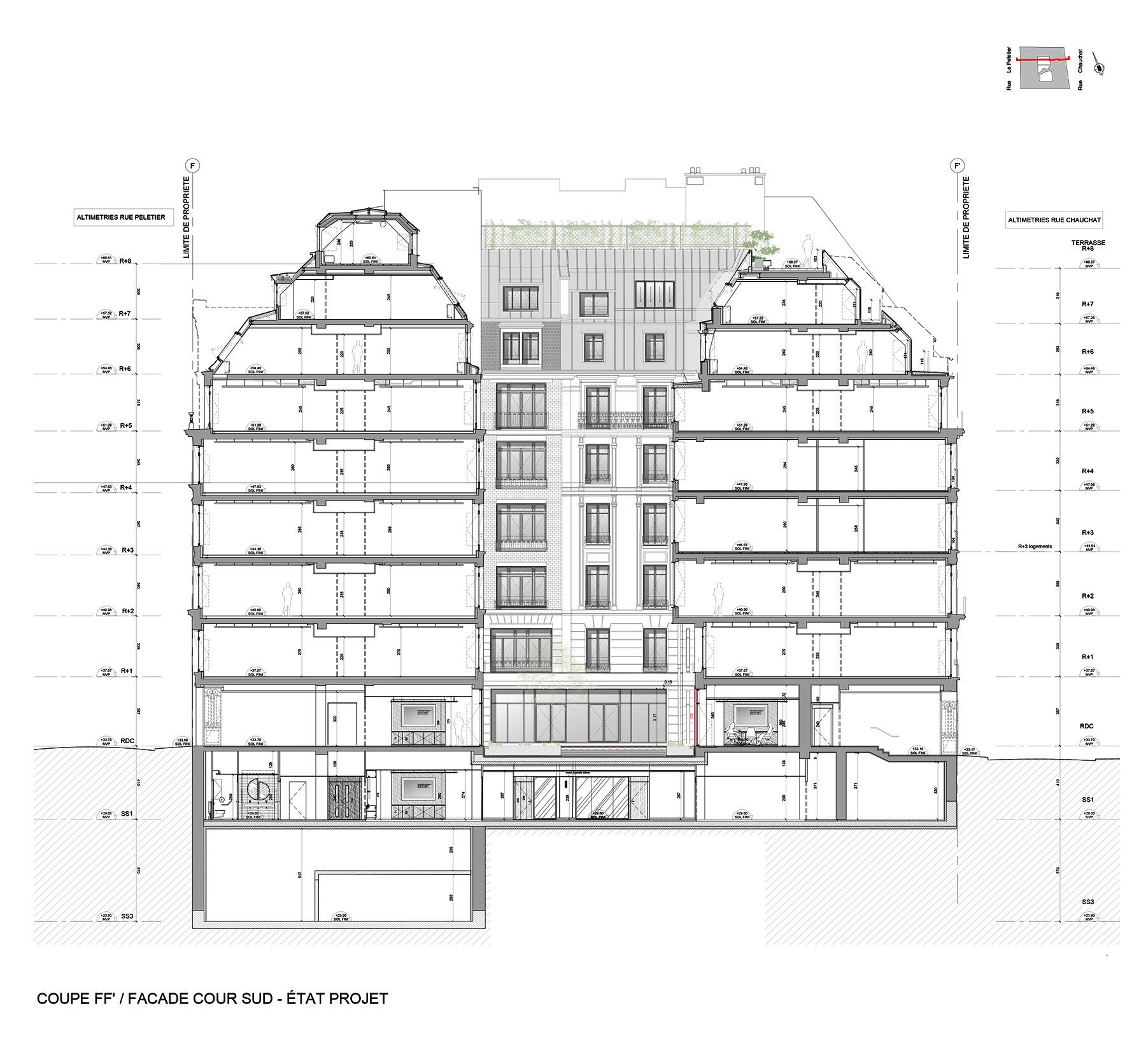
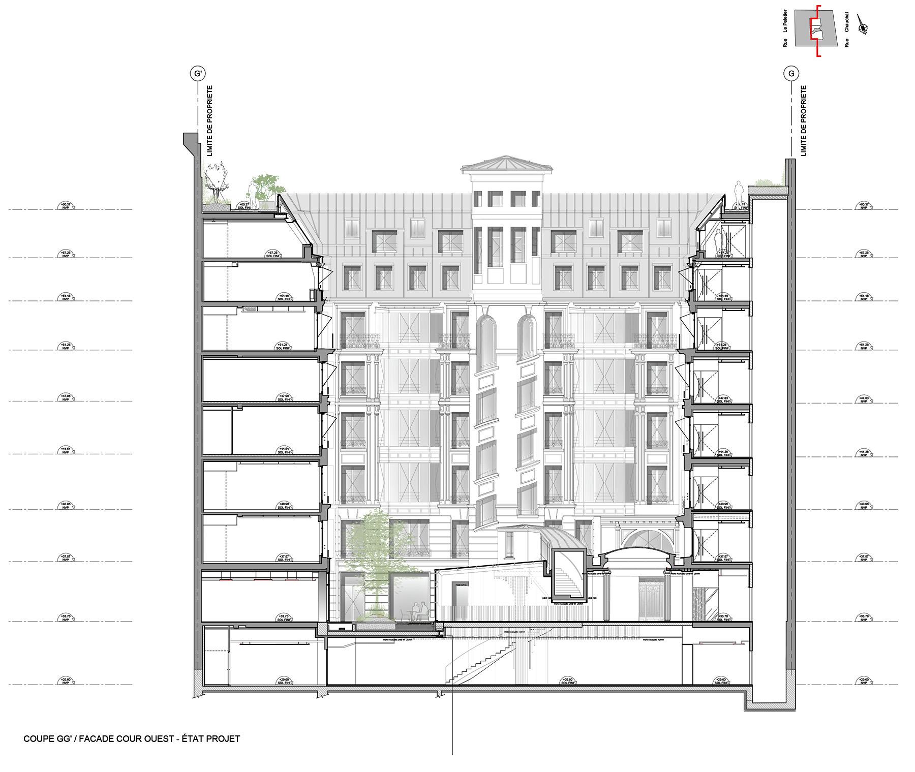
SURFACE
10450 m²
COÛT DE L’OPÉRATION
Confidentiel
DURÉE DE L’OPÉRATION
Chantier en cours
DÉVELOPPEMENT DURABLE
SmartScore V2 niveau Gold
© 3D : Arnauld SABATIER / © 3D Marco GONELLA























